看慣了極盡奢華的花花世界,屋主夫妻在卸下繁忙的工作之後,期望退休生活能夠回歸平凡、簡單,因此在這棟三代同堂的別墅中,沒有過多華麗而繁複的設計手法,取而代之的是大方且舒適的生活溫度與實用機能,細心為屋主一家人刻劃出共享天倫的幸福畫面。
阿曼空間設計以居住者需求為設計主軸,將生活機能與空間美感做融合,王光宇設計師挪動廚房電器櫃與冰箱的位置,並設置一道格柵屏風加以美化,巧妙隱藏起視覺的突兀感。此外,實用機能也是本案的設計重點之一,不論是位於一樓公共空間,或是分置二樓至四樓的臥房,皆規劃了足夠的櫃體,滿足日常生活中不可或缺的收納需求。
Case Data
居住成員:三代同堂
裝潢費用:-
房屋坪數:100坪
設計風格:現代風格
房屋類型:別墅
房屋狀況:新成屋
圖片提供:阿曼空間設計
空間格局:客廳、餐廳、廚房、主臥、次主臥、小孩房、儲藏室、神明廳
主要建材:天然石材、天然木皮、烤漆、彩紋漆
簡單大方
捨去過多繁複的裝飾語彙與設計手法,以簡單且大方的質材、色彩,營造低調內斂的生活質感。
開放式設計
一樓場域作為公領域,阿曼空間設計以開放式設計串聯客廳與餐廚區,創造寬適的活動空間。
電視主牆
王光宇設計師採用米白色大理石作為電視主牆,簡單營造大方、典雅的場域氣度。
視覺美化
挪動冰箱的位置,並藉由一道格柵造型屏風將其隱藏,有效修飾空間美感。
吧檯
於廚房與餐廳之間設置吧檯,增添生活機能的豐富性。
溫暖基調
主臥室以溫潤木色為空間基調,圍塑出溫暖質樸的休憩氛圍。
櫻桃木
木地板為建商所鋪設,王光宇設計師特別選用質地細膩的櫻桃木與之融合,調配出和諧溫潤的視覺美感。
貼心機能
考量到退休夫妻的起居習慣,特別於臥室入口處設置茶水櫃,貼心滿足夜間飲水的生活需求。
次主臥
選以屋主小兒子喜歡的深色調做鋪陳,展現沉穩內斂的空間表情,並規劃完整更衣、衛浴機能,以便日後作為新婚房使用。
二樓小孩房
同樣規劃了櫃體與書桌機能,賦予完整且實用的臥室空間。
系統櫃
私領域的家具配置多以系統櫃做安排,利用其多元的花紋樣式,鋪展空間的細膩質感。
活潑跳色
同樣以白與木色為底的空間中,選以鮮明亮眼的軟件做跳色,襯托出小孩房的活潑表情。
B1、1F平面圖
2F、3F平面圖
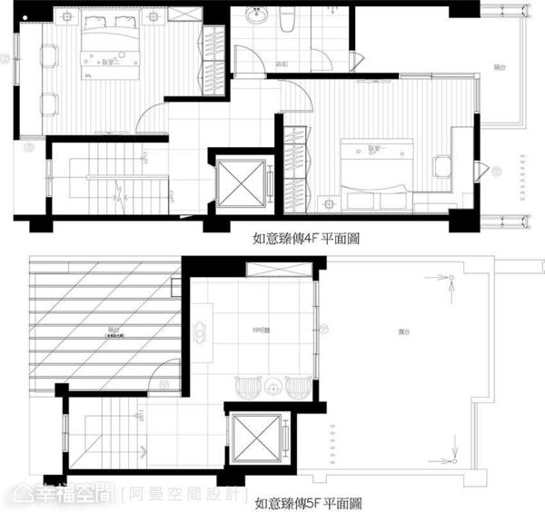
4F、5F平面圖
延伸閱讀1:日光爛漫處簡單卻不極簡的細緻生活
延伸閱讀2:現代美式鄉村特調家就該別緻紓壓!


















留言評論